Nos preocupa tu privacidad En pisos.com utilizamos cookies propias y de terceros para dar un servicio satisfactorio mediante cookies técnicas, de personalización y para fines analíticos. pulsa AQUÍ para más información. Puedes aceptar todas las cookis pulsando el botón "aceptar" o configurarlas o rechazar su uso pulsando
Aceptar Rechazar todas Configurar
Hotel en venta en Bullas
  • 818 m2
428.000 €
Solicitar información del inmueble
Enviar
Llámanos ahora
call
968274705

Hotel en venta en Bullas

Bullas

REF.: PM64421 428.000 €
Contactar ahora
Contactar ahora 968274705
call
Llamar
email
Contactar
call
Llamar
email
Contactar
Detalles del inmueble
  • Precio 428.000 €
  • Referencia PM64421
  • Dirección Calle General Antonio Sanchez Hernandez
  • Zona Bullas
  • Superficie total 818 m2
  • Superficie útil 818 m2
  • Certificación energética
    Clasificación En trámite
  • Descripción Oportunidad sólo para inversores. El activo se encuentra ocupado por persona sin justo título. Debido al estado ocupacional del activo, no se pueden realizar visitas al mismo.

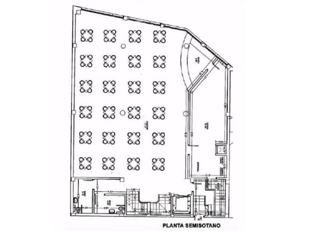
    Hotel situado en Bullas, Murcia. Cuenta con una superficie de 1082 m² distribuidos en varias plantas: La planta sótano destinada a cocina y salón. La planta baja en la que se encuentra la recepción, barra y servicios. La planta primera y segunda destinada a habitaciones dobles y sencillas y la planta tercera en la que se encuentran las salas de máquinas y servicios. Explotación hotelera de categoría 3. Está ubicado a la entrada de la población, con los equipamientos y comunicaciones suficientes para la zona.
    La empresa informa que el inmueble se encuentra sujeto a gravámenes, cargas y/o limitaciones específicas, cuya gestión, tratamiento y, en su caso, cancelación, incluida la registral, deberá negociarse con la empresa, por lo que el precio final de venta del inmueble se determinará en función de las obligaciones que asuma cada parte.
Dirección

Calle General Antonio Sanchez Hernandez
Bullas

Teléfono

968274705

Fax

968290692

Email

info@tierraygestion.com

Calculador de hipotecas

Calcular